
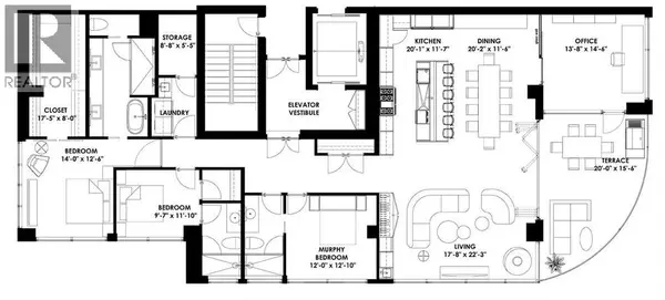
3 Beds
3 Baths
2,486 SqFt
3 Beds
3 Baths
2,486 SqFt
Key Details
Property Type Single Family Home, Condo
Sub Type Condo
Listing Status Active
Purchase Type For Sale
Square Footage 2,486 sqft
Price per Sqft $2,111
Subdivision Hillhurst
MLS® Listing ID A2224066
Bedrooms 3
Condo Fees $2,063/mo
Property Sub-Type Condo
Source Calgary Real Estate Board
Property Description
Location
Province AB
Rooms
Kitchen 1.0
Extra Room 1 Main level 17.67 Ft x 22.25 Ft Living room
Extra Room 2 Main level 20.17 Ft x 11.50 Ft Dining room
Extra Room 3 Main level 20.08 Ft x 11.58 Ft Kitchen
Extra Room 4 Main level 14.00 Ft x 12.50 Ft Primary Bedroom
Extra Room 5 Main level 17.42 Ft x 8.00 Ft Other
Extra Room 6 Main level .00 Ft x .00 Ft 6pc Bathroom
Interior
Heating Central heating
Cooling Central air conditioning, See Remarks
Flooring Hardwood
Fireplaces Number 1
Exterior
Parking Features Yes
Community Features Pets Allowed, Pets Allowed With Restrictions
View Y/N No
Total Parking Spaces 3
Private Pool No
Building
Story 9
Others
Ownership Condominium/Strata

"My job is to find and attract mastery-based agents to the office, protect the culture, and make sure everyone is happy! "






